
Альбом чертежей выполнен в рамках программы REVIT по уже существующему дизайн-проекту 4room.studio
Основной уклон в работе был сделан на оттачивание навыков черчения планов, спецификация и мебели в REVIT

Обмерный план


План демонтажных работ / План монтажных работ

План расстановки мебели / План расстановки мебели с размерами
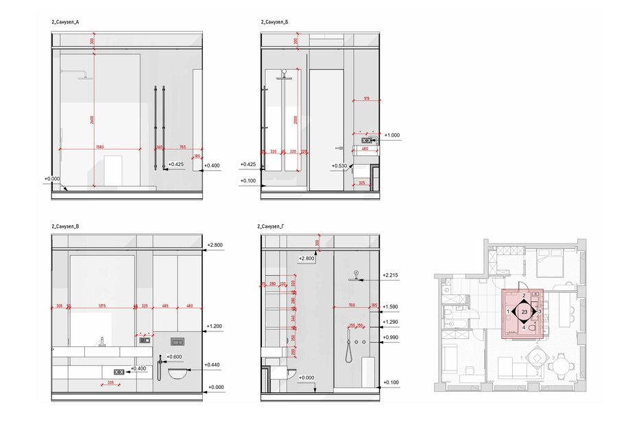
3D схемы сан.узлов


План размещения электрооборудования / План размещения электрооборудования с размерами
План расстановки осветительного оборудования / План расстановки осветительного оборудования с размерами


План потолков / План отделки стен
План группировки осветительного оборудования
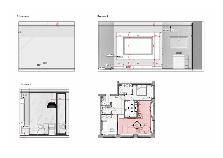
Развертки Кухни-гостиной / Развертки Мастер сан.узла
Полный альбом можно просмотреть здесь