
В рамках курса технологий по изучению программы AutoCAD был разработан альбом чертежей к проекту учебного кластера «РЭД».
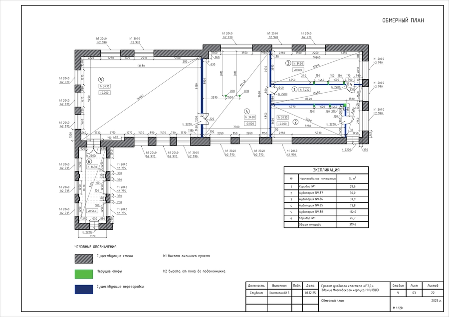
Обмерный план
Альбом включает основные планировочные и конструктивные решения, выполненные в цифровом формате, с соблюдением стандартов оформления технической документации и требований учебного проекта.
План расстановки мебели и оборудования
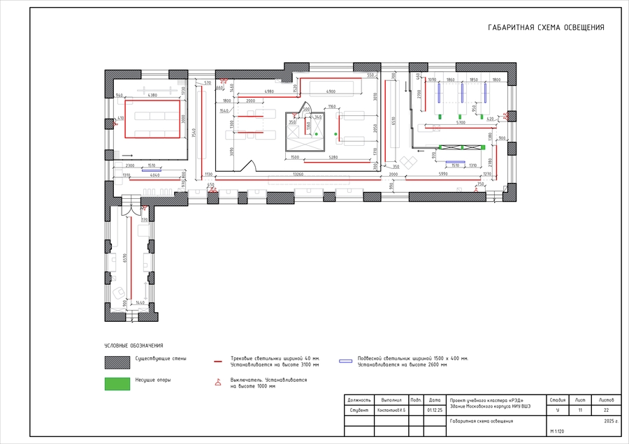
Для кластера были разработаны решения по размещению электроники и систем освещения, обеспечивающие функциональность, удобство эксплуатации и соответствие требованиям учебной среды.
План электрики
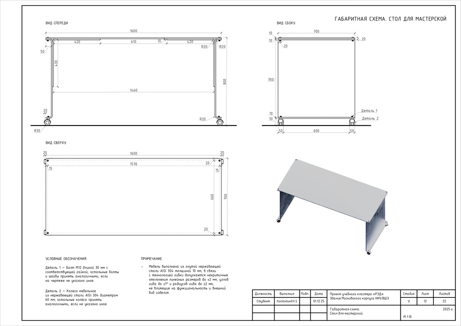
Также в рамках разработки альбома были выполнены габаритные схемы мебели, отражающие размеры и взаимное расположение элементов.
Габаритная схема. Стол для мастерской
Оригинальные проекты кластера и мебели
Проект учебного кластера «РЭД» и мебели, разработанной для него