
ФОТО-ЗОНА БОЛЬШОЙ ГОРОД
Концепция
Арт-объект «Город, напечатанный сегодня» собирает архитектурный образ города из выпусков газеты «Большой город». Временные носители информации становятся фасадами, этажами, улицами. Новости — тем, из чего буквально вырастает городская среда.
Здесь нет конкретного адреса и нет фиксированной даты. Перед зрителем — собирательный город, в котором актуальное и забытое существуют одновременно. Газетная бумага, созданная для краткого использования, обретает форму устойчивой конструкции — как напоминание о том, что даже самое мимолётное оставляет след.
Зеркальные элементы внутри инсталляции возвращают взгляд зрителя обратно в композицию. Наблюдая город, человек становится его частью — отражённым в тексте, напечатанном сегодня.
Этот объект — не про ностальгию и не про хронику. Он про момент. Про то, как сегодняшний день превращается в среду, в которой мы живём.
Визуализации
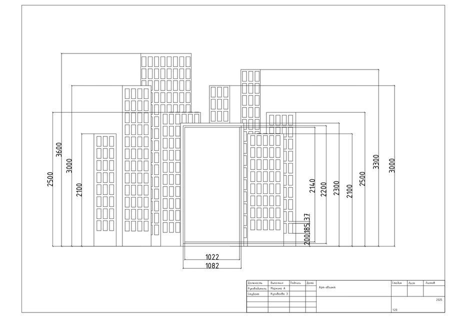
Ортогональные проекции

Чертежи
Материалы
Каркас «домов» — фанера + брус
Прозрачный поликарбонат поверх газет
Зеркало
Окна в «домах» • Светодиодная лента 12 В, нейтральный белый 4000–4500K • Установка внутри короба за матовым акрилом / молочным поликарбонатом • Профиль алюминиевый с рассеивателем
Зеркальный портал • Светодиодная лента в алюминиевом профиле по периметру зеркала • Рассеиватель обязателен
Арт-объект BRATZ