
АЛЬБОМ ЧЕРТЕЖЕЙ ПРАКТИЧЕСКИХ ЗАДАНИЙ
В проекте представлены учебные чертежи, выполненные в течение первого модуля в программе AutoCAD по дисциплине «Специальные технологии»
— Основы проекционного черчения

— План возведения перегородок

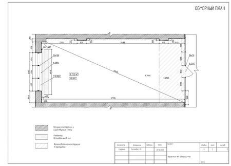
В качестве итоговой работы выполнены ряд чертежей, план перегородок по собственному дизайн-проекту кластера, обмерные планы учебной аудитории, а также был подготовлен план коммуникаций
— Обмерные планы


Обмерный план | Обмерный план с коммуникацией