
В проекте по дисциплине «Специальные технологии» представлены учебные чертежи, выполненные в течении модуля в программе AutoCAD, с широким набором функций для создания и редактирования самих чертежей, моделей.
Упражнения:
Вариации декоративных ваз:
Основы проекционного черчения:
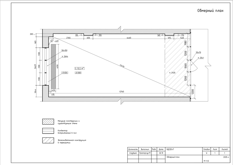
В ходе изучения проводилась также обмерная практика компьютерной аудитории в корпусе Канатного цеха НИУ ВШЭ, Санкт-Петербург.
План возводимых перегородок / Обмерный план / Коммуникация