
По результатам освоения курса «Основы цифрового черчения» был разработан альбом учебных чертежей.
Данный альбом включает в себя: Технические задания: узоры, сопряжения, проекции. Архитектурную графику: профили обломов и чертежи декоративных ваз. Теоретическое обучение: оформление чертежа интерьера с возводимыми перегородками. Практическое применение: обмерный план и план электроприборов. Частный дом г. Пермь

Задания № 1 и № 2. Узоры
Задание № 3. Сопряжения Задание № 3. Профили архитектурных обломов. Задание№ 5. Усложненная ваза — балясина

Задание № 4. Декоративные базовые вазы
Задания № 6 и № 7. Проекции: 1 уровня и 2 уровня
Задание № 8. Оформление чертежа интерьера
Задание № 9. Работа с оформлением и выводом чертежей
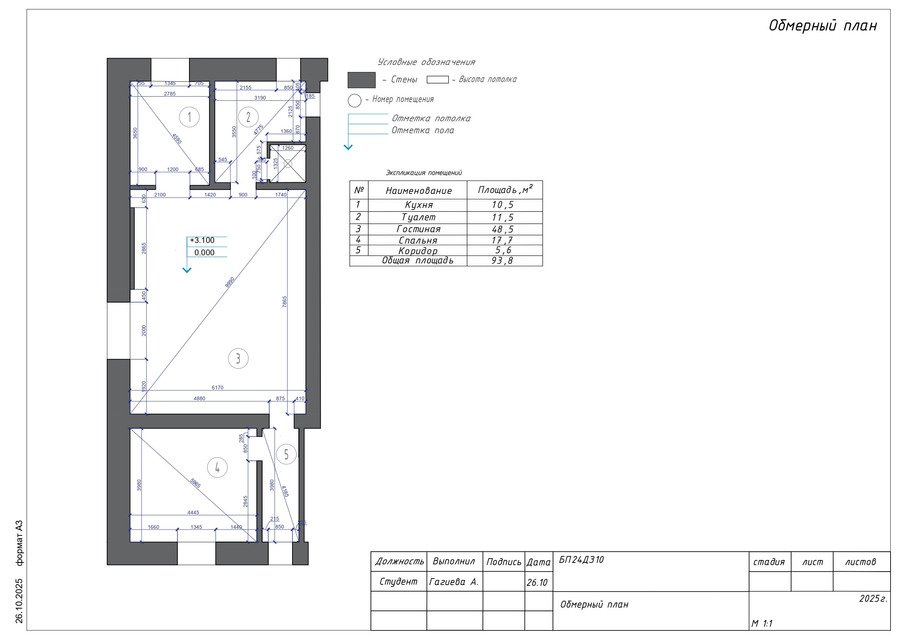
Обмерная практика: Обмерный план и спецификация дверных и оконных проёмов квартиры. План размещения розеток и выключателей и спецификация электроприборов. г. Пермь