
Альбом учебных чертежей, подготовленный по результатам прохождения курса «Основы цифрового черчения».
Практика содержит выполненные: узоры, сопряжения, архитектурные обломы, вазы, проекционные чертежи и обмерный план квартиры.


Задание 1 и 2 — Узоры


Задание 3 — Сопряжения


Задание 3 — Профили архитектурных обломов Задание 4 — Декоративная ваза


Задание 5 — Усложненная декоративная ваза и балясина
Задание 6 — Проекции (базовый уровень) Задание 7 — Проекции (продвинутый уровень)

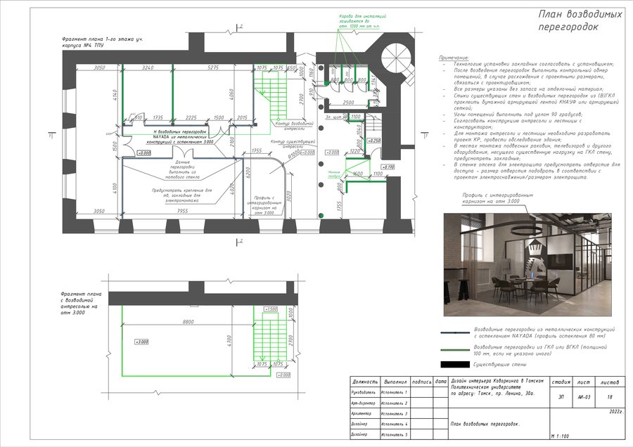
Задание 8 — Оформление чертежа: План возводимых перегородок
Задание 9 — Работа с оформлением, выводом чертежей и весом линий
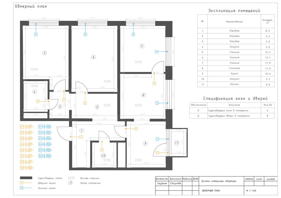
Обмерная практика — Обмерный план и план размещения розеток и выключателей