
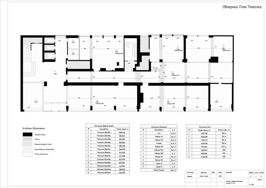
На чертеже показана существующая планировка помещения с указанием несущих стен, перегородок, дверных и оконных проёмов. Отражены основные размеры, отметки и обозначения помещений. Материалы и конструктивные элементы дифференцированы по типу штриховки и толщине линий для удобства восприятия.
