Original size 1140x1600

квартира на ул. маршала Соколовского

PROTECT STATUS: not protected
177

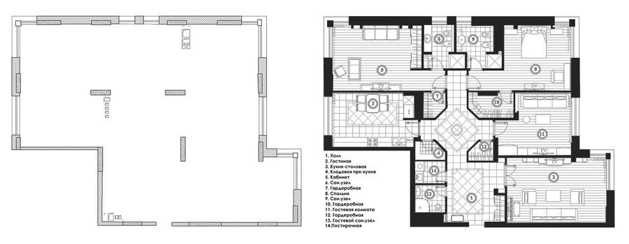
интерьер квартиры площадью 155 м² по адресу: г. Москва, ул Маршала Соколовского. Заказчиком была поставлена задача создания интерьера в «классическом стиле», с обязательным устройством гардеробных комнат и сан.узлов при каждой жилой комнате.

big
Original size 1600x622
big
Original size 1600x1140
big
Original size 1600x1140
Original size 1600x1140
квартира на ул. маршала Соколовского
177
We use cookies to improve the operation of the website and to enhance its usability. More detailed information on the use of cookies can be fo...
Show more