
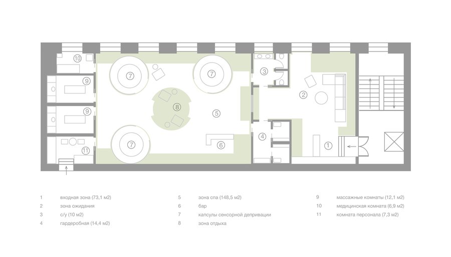
«SILENCE» специализируется на предоставлении экспериментальных услуг для отдыха. В пространстве торгового дома «Пассаж» компания предлагает полностью расслабить тело и разум через процедуру флоатинга.




Процедуру флоатинга можно назвать весьма специфичной, благодаря создаваемой в капсуле среде.